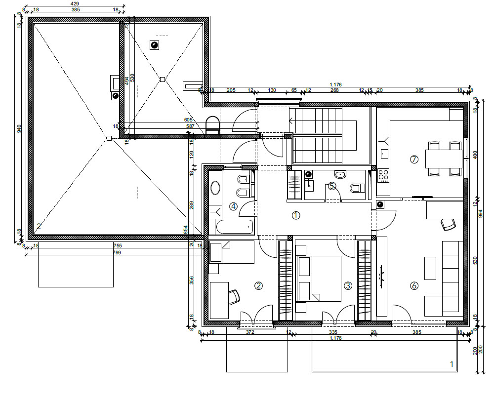
Green Living stan dimenzije 96,31 m2
- Površina stana: 96,31 m2
- 1. Hodnik - 9,97 m2
- 2. Soba 1 - 13,24 m2
- 3. Soba 2 - 11,93 m2
- 4. Kupaonica - 5,41 m2
- 5. WC - 3,48 m2
- 6. Dnevna soba - 20,41 m2
- 7. Kuhinja i blagovaonica - 15,40 m2
- Nenatkriveni balkon 1 12,80 m2 x 0,25 3,20 m2
- Parking mjesto PM 5 12,79 m2 x 0,20 2,56 m2
- Nenatkrivena terasa 2 53,06 m2 x 0,25 13,27 m2
Energetski certifikat A+
Parkirno mjesto
Stan 01
72,65 m2
3-SOBNI STAN
Stan 02
72,18 m2
3-SOBNI STAN
Stan 03
68,95 m2
3-SOBNI STAN
Stan 04
84,49 m2
3-SOBNI STAN
Stan 05
96,31 m2
3-SOBNI STAN