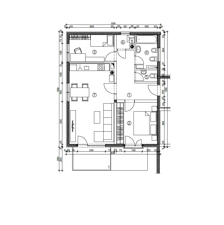
Green Living stan dimenzije 72,18 m2
- Površina stana: 68,95 m2
- 1. Hodnik - 9,37 m2
- 2. Soba 1 - 12,60 m2
- 3. Soba 2 - 8,97 m2
- 4. Kupaonica - 6,23 m2
- 5. WC - 1,85 m2
- 6. Gospodarska prostorija - 1,84 m2
- 7. Dnevni boravak, blagavaona
i kuhinja -26,44 m2
- Nenatkriveni balkon 1 - 6,60 m2 x 0,25 1,65 m2
- Parking mjesto PM 3 - 12,79 m2 x 0,20 2,56 m2
Energetski certifikat A+
Parkirno mjesto
Stan 01
72,65 m2
3-SOBNI STAN
Stan 02
72,18 m2
3-SOBNI STAN
Stan 03
68,95 m2
3-SOBNI STAN
Stan 04
84,49 m2
3-SOBNI STAN
Stan 05
96,31 m2
3-SOBNI STAN